Direkt zum Inhalt
Alten- und Pflegezentrum Klaus-Bahlsen-Haus
Alten- und Pflegezentrum Klaus-Bahlsen-Haus
Alten- und Pflegezentrum Klaus-Bahlsen-Haus
Alten- und Pflegezentrum Klaus-Bahlsen-Haus
Alten- und Pflegezentrum Klaus-Bahlsen-Haus
Alten- und Pflegezentrum Klaus-Bahlsen-Haus
Alten- und Pflegezentrum Klaus-Bahlsen-Haus
Alten- und Pflegezentrum Klaus-Bahlsen-Haus
Alten- und Pflegezentrum Klaus-Bahlsen-Haus
Alten- und Pflegezentrum Klaus-Bahlsen-Haus
Alten- und Pflegezentrum Klaus-Bahlsen-Haus
Alten- und Pflegezentrum Klaus-Bahlsen-Haus
Alten- und Pflegezentrum Klaus-Bahlsen-Haus

Alten- und Pflegezentrum Klaus-Bahlsen-Haus

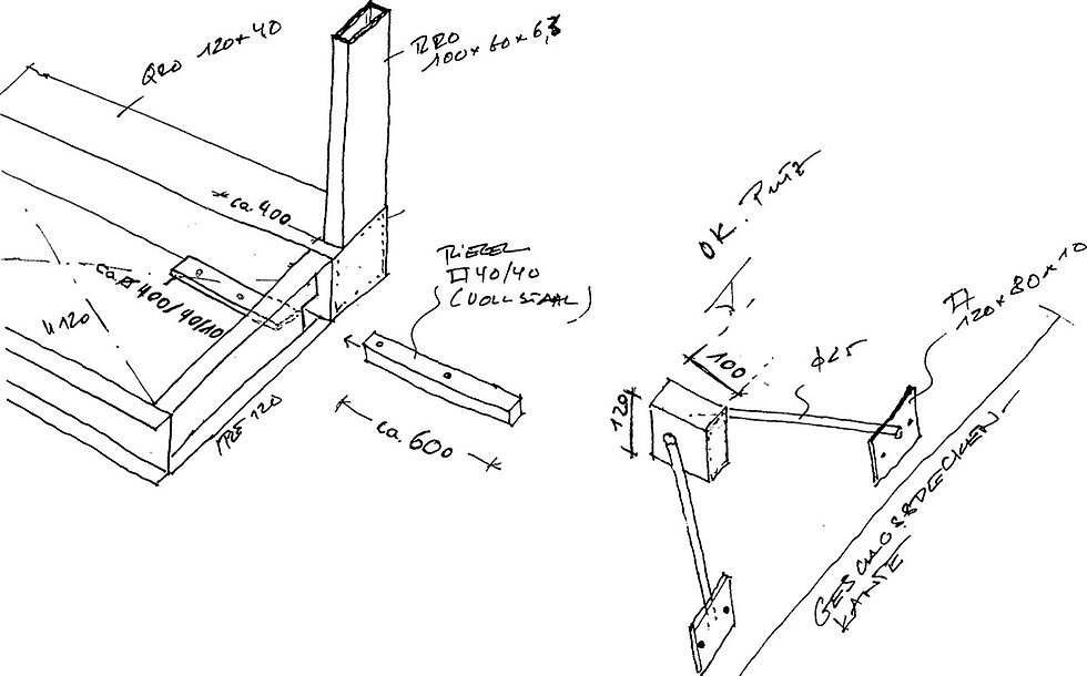
Das Gebäude ist zweigeschossig und in Massivbauweise mit Teilunterkellerung konzipiert. Die Stahlbetondecken wurden einachsig spannend in Halbfertigteilbauart ausgeführt. Bedingt durch den energetischen Standard „Passivhaus“ wurden hohe Anforderungen an eine wärmebrückenarme Konstruktion gestellt. Die lastabtragende Wärmedämmung unter den nichtunterkellerten Bauteilen ist aus Schaumglasschotter ausgeführt worden. Überstehende Teile wie Flachdachattiken wurden zur Erfüllung der energetischen Anforderungen in leichter Bauweise ausgeführt. Die Außenliegende Sonnenschutzkonstruktionen und Balkone wurden als freitragende Stahlkonstruktionen mit reduzierten Detailpunkten am Gebäude angeschlossen. Der Baukörper ist durch vier Gebäudefugen gegliedert. Das Untergeschoss ist als weiße Wanne wasserdruckhalten ausgeführt.

Alten- und Pflegezentrum Klaus-Bahlsen-Haus
Ort:
Hannover, Niedersachsen
Auftraggeber: Landeshauptstadt Hannover, Hannover
Architekt: Pfitzner und Moorkens Architekten, Hannover
Bauwerkskosten: 5,3 Mio. €
Leistungsumfang: LP 2 - 6, 8
Planungszeitraum: 2006 - 2007
Fertigstellung: 2008
Auszeichnung: Niedersächsischer Staatspreis für Architektur 2010, engere Wahl
Gestaltungspreis Wüstenrotstiftung 2009, engere Wahl (Das Klaus-Bahlsen Haus kam unter die ersten 20 von 324 eingereichten Arbeiten und ist in einer Ausstellung und der Dokumentation vertreten.)
Wettbewerb 2005, 1. Preis
Bildmaterial: Frank Aussiecker; DREWES + SPETH

PDF: Projektinfo und Bilder