Direkt zum Inhalt
Berggartenhaus
Berggartenhaus
Berggartenhaus
Berggartenhaus
Berggartenhaus
Berggartenhaus
Berggartenhaus
Berggartenhaus
Berggartenhaus

Berggartenhaus

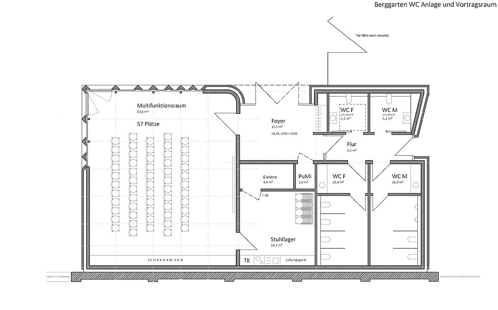
Der Neubau des Bergartenhauses mit Vortragsraum und WC Anlage befindet sich im Berggarten Hannover Herrenhausen, in der Herrenhäuser Straße 4. Das Gebäude ist als eingeschossiges, nicht unterkellertes Gebäude konzipiert. Der Vortragsraum wird unter anderem für Seminare und das Unterrichten von Schulklassen bei Ausflügen genutzt.
Die Außenkanten des Gebäudes umfassen eine Fläche von rd. 20 x 10,5m. Die Gebäudeabmessungen erlauben eine fugenlose Ausführung in Massivbauweise.
Die Stahlbetondecke wird über Mauerwerkswände aus Kalksandstein und Porenbeton, sowie Stahlstützen gehalten. Die Decke des Veranstaltungsraumes wird als Kassettendecke ausgeführt, alle weiteren Bereiche werden mit einer Stahlbetondecke mit einer Stärke von 26cm ausgeführt.
Eine Besonderheit besteht in der Kassettendeckenkonstruktion des Veranstaltungsraumes und dem Anschluss der südlich gelegenen Bestandsmauer des Berggartens.
Die Kassettendecke wurde gewählt, damit die vorgegebene Höhe des Gebäudes eingehalten werden kann und zeitgleich ein gutes Raumgefühl mit hohen Decken im Vortragsraum erzeugt wird.
Der Anschluss zwischen der Bestandsmauer und dem Berggartenhaus wird durch eine Bewegungsfuge, die mit einer Weichschicht sowie einer Wärmedämmschicht ausgeführt wird, voneinander getrennt, sodass sich zwei eigenständige Systeme ausbilden, die sich nicht gegenseitig beeinflussen. Die Bestandsmauer wird nach dem Bau des Berggartenhauses denkmalschutzgerecht neu aufgebaut.

 

Berggartenhaus
Ort:
Hannover, Niedersachsen
Auftraggeber: Stadt Hannover, Hannover
Architekt: Hübotter und Stürken und Dimitrova Architektur und Stadtplanung BDA, Hannover
BGF: 213 m²
Bauwerkskosten: 750.000 € 
Leistungsumfang:
LP 1 - 6
Planungszeitraum: 2018 - 2020
Fertigstellung: 2021
Bildmaterial: Jürgen Voss; Hübotter und Stürken und Dimitrova; Besbard Bauunternehmen; DREWES + SPETH

PDF: Projektinfo und Bilder