Direkt zum Inhalt
Verwaltungsgebäude CEWE
Verwaltungsgebäude CEWE
Verwaltungsgebäude CEWE
Verwaltungsgebäude CEWE
Verwaltungsgebäude CEWE
Verwaltungsgebäude CEWE
Verwaltungsgebäude CEWE
Verwaltungsgebäude CEWE
Verwaltungsgebäude CEWE
Verwaltungsgebäude CEWE
Verwaltungsgebäude CEWE
Verwaltungsgebäude CEWE
Verwaltungsgebäude CEWE
Verwaltungsgebäude CEWE
Verwaltungsgebäude CEWE
Verwaltungsgebäude CEWE
Verwaltungsgebäude CEWE
Verwaltungsgebäude CEWE
Verwaltungsgebäude CEWE

Verwaltungsgebäude CEWE

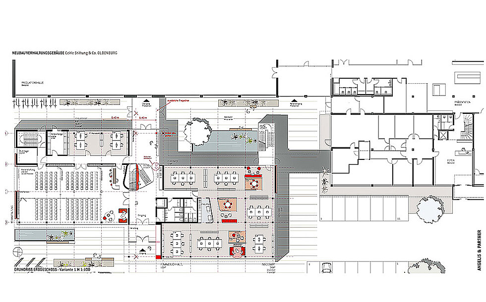
Der Neubau des Verwaltungsgebäudes ist als dreigeschossiges, nicht unterkellertes Gebäude in Stahlbetonbauart konzipiert. Er grenzt südlich im Erdgeschoss und westlich mit einer Verbindungsbrücke in den Obergeschossen an bestehende Gebäude der CEWE Stiftung & Co. KGaA an. Die Geschossdecken werden im Regelfall als punktgestützte Flachdecken ausgebildet. Die Treppen- und Versorgungskerne bilden zusammen mit den Geschossdeckenscheiben ein räumliches statisches System zum Abtrag der horizontalen Lasten. Die Stahlbetonstützen werden mit Dicken von 30 bis 40cm ausgeführt. In einem Teilbereich ist eine stützenfreie Raumnutzung für Veranstaltungen im Erdgeschoss vorgesehen. Als Ersatz für die entfallenen Stützen wird hier die Geschossdecke in reduzierter Dicke ausgeführt und linienförmig von Stahlbeton-Unterzügen abgetragen. Zur Reduzierung der Deckenverformungen werden die Deckenränder in Teilbereichen durch Überzüge verstärkt. Die innere Haupttreppe wird als Stahlkonstruktion mit freitragenden Zwischenpodesten hergestellt. Geländer, Brüstungen und Stufen bilden ein integrales räumliches Tragsystem, welches allein auf den Geschossdeckenrändern abgetragen wird. Auf der Dachebene werden zwei Technikräume in leichter Stahlkonstruktion errichtet.

Die Gründung besteht aus einer durchgehenden elastisch gebetteten Stahlbetonsohlplatte mit Verdickungen unter den höher beanspruchten Bereichen. Die Sohlplatte wird auf lastabtragender Wärmedämmung ausgeführt.

Verwaltungsgebäude CEWE
Ort: Oldenburg (Oldb), Niedersachsen
Auftraggeber: CEWE Stiftung, Oldenburg (Oldb)
Architekt: Angelis & Partner Architekten, Oldenburg (Oldb)
BGF: ca. 3.400 m²
Bauwerkskosten: ca. 12,0 Mio. €
Leistungsumfang: LP 1 - 6
Planungszeitraum: 2014 - 2017
Fertigstellung: 2017
Auszeichnung: Wettbewerb 2014, 1. Preis
Bildmaterial: Angelis & Partner; DREWES + SPETH

PDF: Projektinfo und Bilder